Living in Emerald Meadows/TRAILWEST: Discover 618 Moorpark Avenue in Kanata
Welcome to 618 Moorpark Avenue — a beautifully maintained semi-detached home that perfectly balances modern comfort with family-friendly living. Set in the heart of Kanata’s sought-after Emerald Meadows / Trailwest community, this Tartan Homes “Magnolia” model offers nearly 2,200 square feet of thoughtfully designed space, upgraded finishes, and access to everything that makes Kanata South one of Ottawa’s most desirable places to call home.
Whether you’re a growing family, a professional couple, or someone relocating to Ottawa, this blog will walk you through every detail that makes this property and neighbourhood special — from the schools and parks to the shopping, transit, and community lifestyle that define Emerald Meadows / Trailwest.
The Home: 618 Moorpark Avenue
The Magnolia model by Tartan Homes is known for its open-concept flow, natural light, and generous proportions — and this one has been beautifully cared for and tastefully updated.
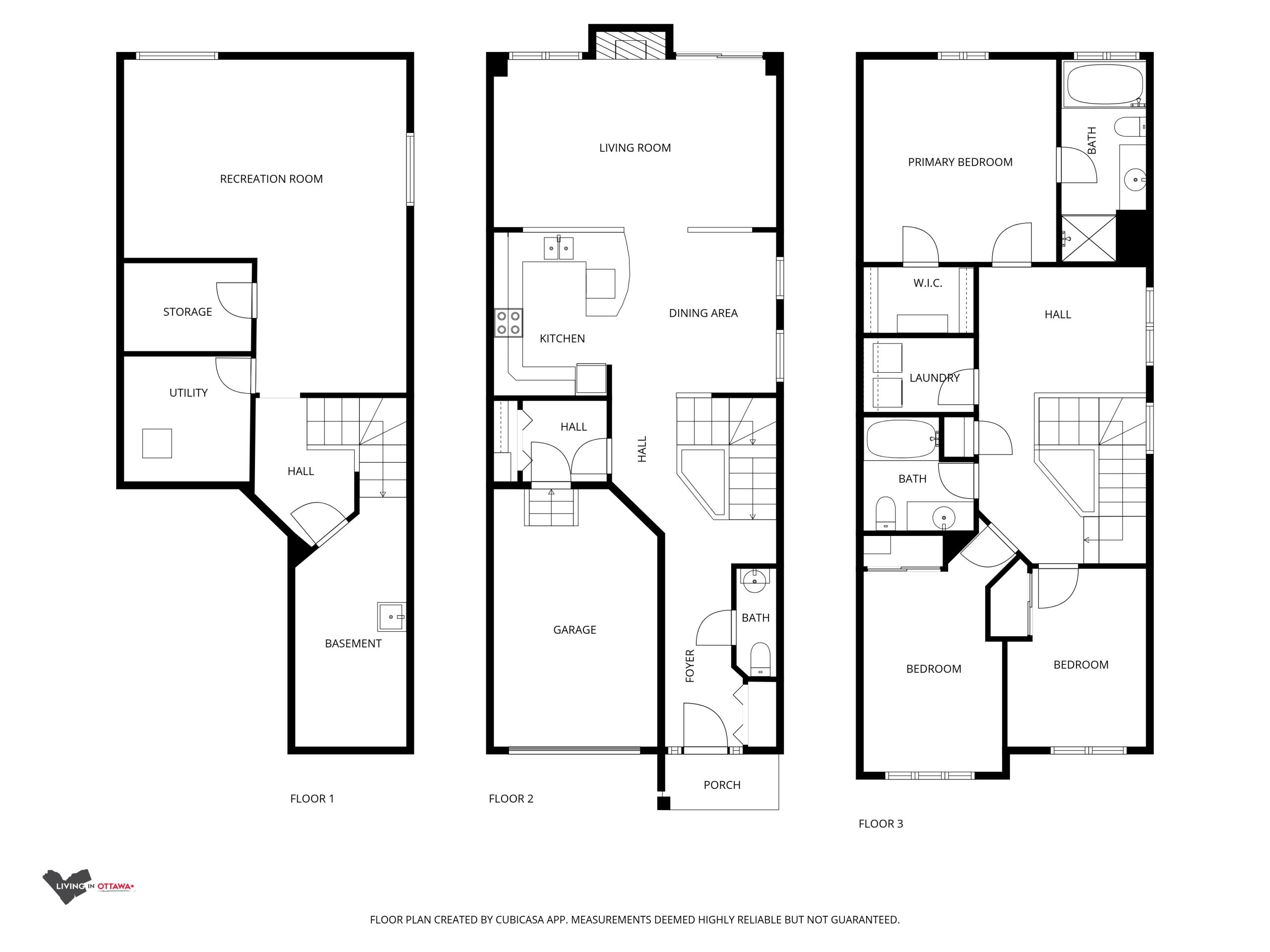
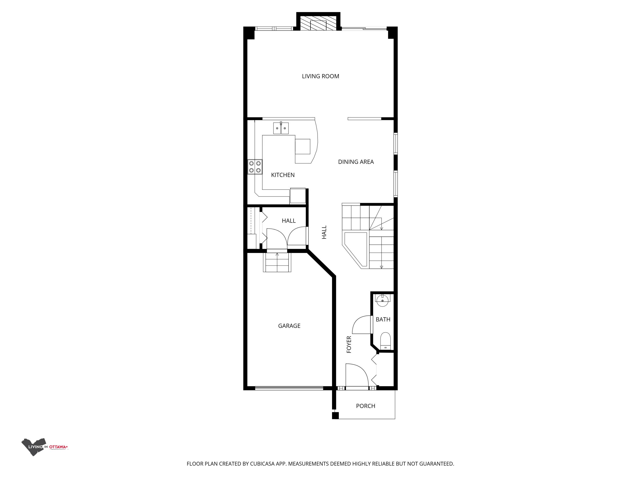
The main floor welcomes you with a bright and open layout that combines the kitchen, dining, and family room into one inviting space. The kitchen features quartz countertops, a tiled backsplash, stainless-steel appliances, and an island that’s perfect for casual dining or entertaining. Hardwood flooring runs throughout the main living areas, with ceramic tile in the foyer and mudroom for durability.
A cozy gas fireplace anchors the family room — the ideal spot for quiet evenings or gathering with friends. Fresh paint throughout the home gives it a modern, move-in-ready feel.
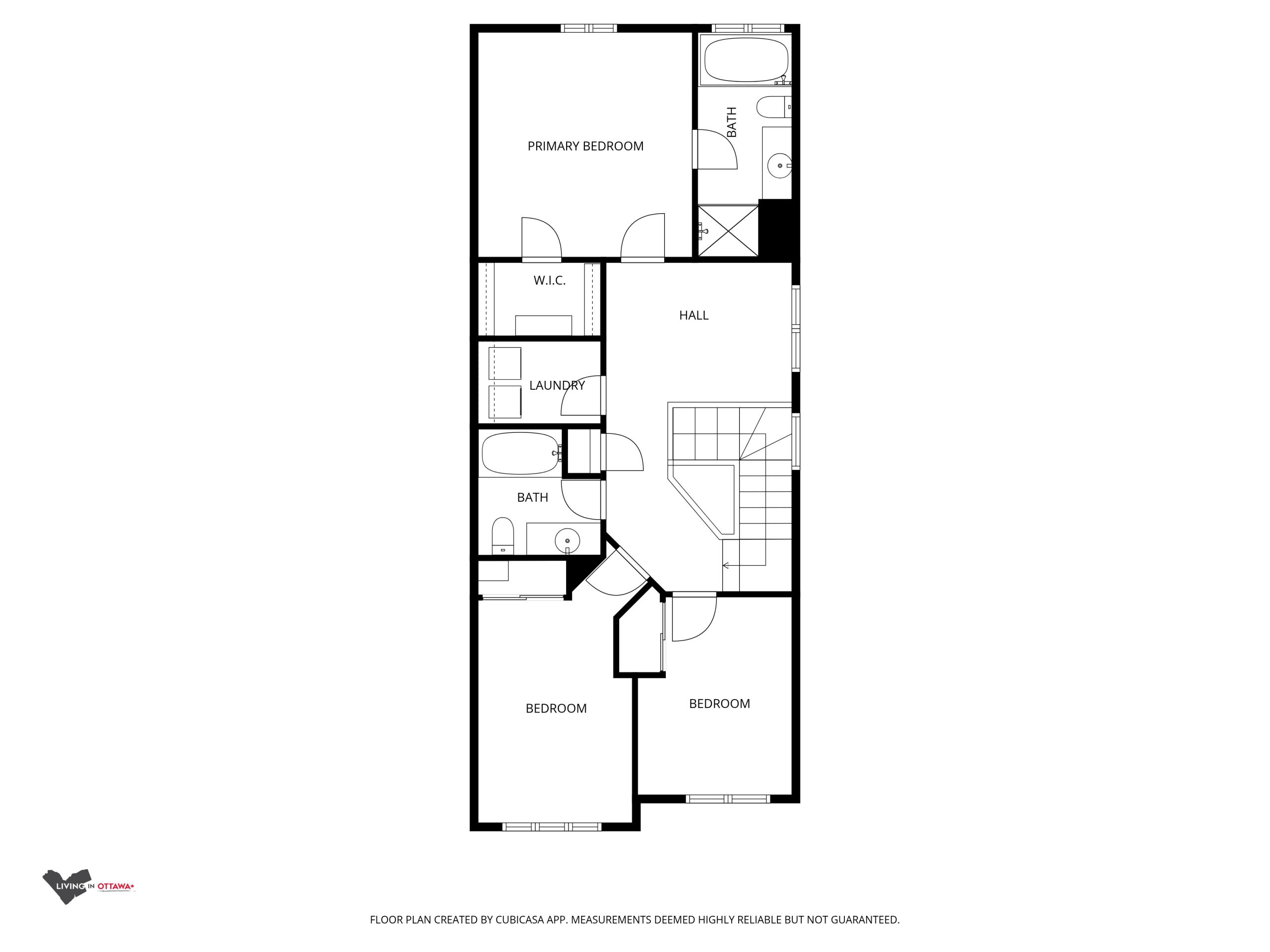
Upstairs, the spacious primary suite includes a walk-in closet and a luxurious ensuite with a soaker tub and separate shower. Two additional bedrooms provide plenty of space for family or guests, while the large loft offers flexibility for a home office, playroom, or reading nook. A full bathroom and upper-level laundry with built-in cabinetry complete the second floor.
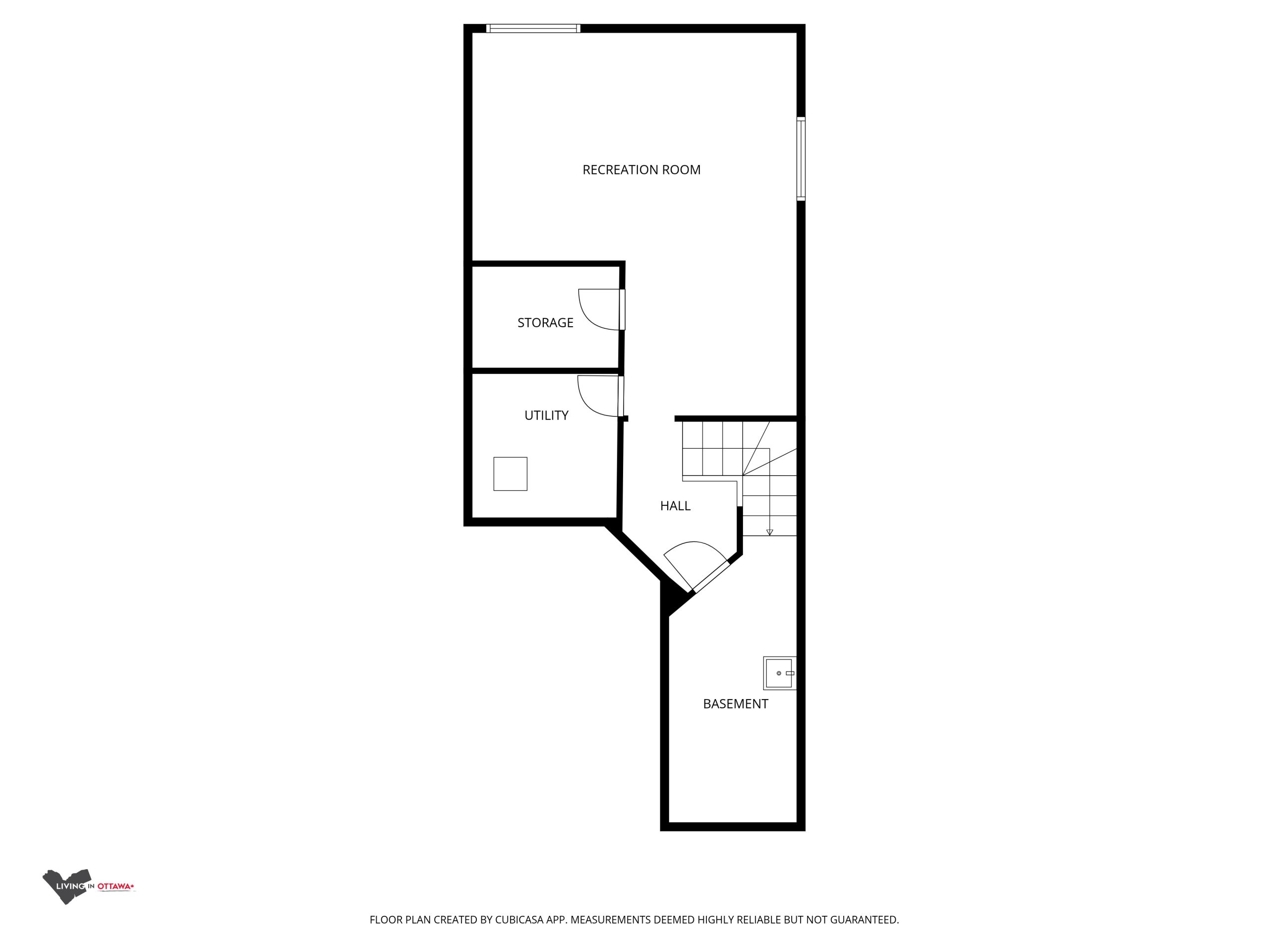
The finished lower level adds valuable living space, featuring a large recreation room, a rough-in for a future bathroom, and plenty of storage. The attached garage includes a newly added EV charger — a convenient and future-ready upgrade.
Outside, the property offers a private yard and excellent curb appeal, with the quiet street adding to the relaxed suburban feel that Emerald Meadows / Trailwest is known for.
About Emerald Meadows/TRAILWEST, Kanata
Emerald Meadows / Trailwest is a master-planned community located in Kanata South. It’s recognized for its peaceful residential streets, abundance of green space, and close proximity to shopping, schools, and major commuter routes. Many of the homes here were built by reputable Ottawa builders such as Tartan Homes, Claridge, and Richcraft.
Residents appreciate the area’s balance — it feels tucked away and peaceful, yet is minutes from major amenities. It’s a true “best of both worlds” neighbourhood that appeals to first-time buyers, growing families, and even downsizers who still want access to everything the city offers.
Schools Near 618 Moorpark Avenue
Families moving to Emerald Meadows / Trailwest often do so for the excellent choice of schools. The area is served by both the Ottawa-Carleton District School Board and the Ottawa Catholic School Board, with French and English options available.
Public Schools
- John Young Elementary School — JK to Grade 6
- Bridlewood Community Elementary School — JK to Grade 6
- Glen Cairn Public School — Grades 7–8
- A.Y. Jackson Secondary School — Grades 9–12
Catholic Schools
- St. Martin de Porres School — JK to Grade 6
- Holy Trinity Catholic High School — Grades 7–12
There are also several childcare options and before-and-after school programs within minutes, including Emerald Meadows School Age Program.
These multiple choices mean that families can easily find the right fit — whether they prefer French immersion, Catholic education, or a strong public-school pathway.
Parks and Outdoor Spaces
One of the standout features of living at 618 Moorpark Avenue is how close you are to green space. Emerald Meadows / Trailwest was designed with families and recreation in mind.
Kristina Kiss Park
Just a short walk from the home, Kristina Kiss Park is a local favourite with open playfields, pathways, and a playground. It’s a popular destination for soccer, family picnics, and after-school play.
Deevy Pines Park and Trail Connections
Nearby Deevy Pines Park offers additional green space and trail connections for walking, biking, and jogging. Many of the local streets have sidewalks and path systems that link to larger routes throughout Kanata South.
Richcraft Recreation Complex
Within a short drive, the Richcraft Recreation Complex in Kanata offers an indoor pool, fitness centre, multi-sport gymnasiums, and community programs for all ages. It’s one of the most comprehensive recreation facilities in Ottawa and a huge asset for residents.
Living here means weekend walks, trail adventures, and an active outdoor lifestyle are part of everyday life.
Shopping and Everyday Conveniences
When it comes to shopping and errands, this location checks every box. You’re only minutes from multiple grocery stores, retail plazas, and service hubs.
Nearby Options Include:
- Real Canadian Superstore on Eagleson Road
- Metro Eagleson for convenient grocery shopping
- Hazeldean Mall for retail stores, banking, and dining
- Shoppers Drug Mart, LCBO, Pet Valu, and Home Hardware all nearby
You’ll also find numerous restaurants, take-out spots, and local cafés in the area — from family dining to quick lunches. Whether it’s grabbing coffee on the way to work, picking up groceries, or running weekend errands, everything is within a short drive or even a comfortable walk.
For larger retail trips, the Kanata Centrum and Tanger Outlets are less than 10 minutes away.
Transit and Commuting
Emerald Meadows / Trailwest has strong connectivity to major routes, making it commuter-friendly for anyone working in Kanata’s tech hub, downtown Ottawa, or beyond.
- Eagleson Road connects directly north to Highway 417, allowing easy access into Ottawa’s west end and downtown.
- Hazeldean Road and Robertson Road provide quick east-west travel.
- OC Transpo Bus Routes run throughout Kanata South, offering regular and express service to major destinations and Park & Ride locations.
For many residents, commutes are efficient while still enjoying the peace of suburban living.
Lifestyle and Community Vibe
Emerald Meadows / Trailwest stands out for its friendly, family-oriented atmosphere. The streets are lined with trees, the parks are active with kids, and neighbours genuinely look out for one another.
Local community associations often organize events throughout the year — from outdoor movie nights to community clean-ups and seasonal festivals. It’s the kind of neighbourhood where families walk their dogs after dinner, kids ride bikes to school, and everyone waves hello on the street.
If you’re relocating from another city, this area offers that small-town warmth within a major metropolitan region.
Why Buyers Love This Area
When buyers explore Kanata South, Emerald Meadows / Trailwest consistently rises to the top of the list. Here’s why:
- Great value per square foot compared to older central neighbourhoods.
- Modern construction — homes built with today’s layouts and energy-efficiency standards.
- Proximity to schools, parks, and services — everything families need.
- Access to major employment hubs in Kanata North and West Ottawa.
- Excellent resale potential due to consistent demand.
Add in the growing popularity of electric vehicles, and a home with a built-in EV charger like 618 Moorpark Avenue is even more future-friendly.
Community Growth and Future Outlook
Kanata South continues to evolve, with new commercial developments and infrastructure improvements enhancing convenience and property values. Emerald Meadows and Trailwest remain strong investment areas thanks to their combination of affordability, lifestyle appeal, and accessibility.
For families who want a balance between nature and city life — and professionals who value space without sacrificing commute time — this location represents a smart long-term move.
Daily Life at 618 Moorpark Avenue
Imagine mornings filled with natural light in your open kitchen. Grab a coffee and walk the kids to Kristina Kiss Park before school. On weekends, stock up at the Superstore, catch a fitness class at Richcraft Recreation Complex, and spend the evening enjoying takeout from your favourite local restaurant.
The home’s design supports the rhythm of everyday life — from the open-concept main level that connects family time to the quiet loft upstairs, to the finished basement that can flex into a media room, gym, or teen hangout.
This is a property that doesn’t just look good on paper; it genuinely works for how families live today.
A Smart Investment in a Growing Community
As Kanata South continues to attract families and professionals, homes like 618 Moorpark Avenue remain in high demand. The combination of Tartan Homes quality, thoughtful upgrades, and a superb location means this is a property that will hold its value — and lifestyle appeal — for years to come.
Final Thoughts
618 Moorpark Avenue is more than a home; it’s a lifestyle choice. It offers a modern, move-in-ready design, smart upgrades like an EV charger, and a community where everything you need is right at your doorstep.
Emerald Meadows / Trialwest continues to be one of Kanata’s most loved neighbourhoods — a place where families grow, friendships form, and daily life feels easy and connected.
If you’d like to learn more about 618 Moorpark Avenue, schedule a showing, or explore other homes in Emerald Meadows / Trailwest, reach out today. Whether you’re buying or selling in Kanata, this is your opportunity to experience what makes this part of Ottawa so special.




